VF25-3 · типовой проект
Линд
Линд — одноэтажный типовой дом VillaForma с более выразительной архитектурой и собранной планировкой. Проект подойдёт для семьи, которой нужен не просто спокойный базовый дом, а дом с характером: с высоким центральным объёмом, цельной общей зоной, тремя спальнями, удобным техническим блоком, крытой парковкой и террасой, встроенной в повседневную жизнь.
Код
VF25-3
Внутренняя площадь
104,38 м²
Общая площадь
156,89 м²
Этажность
1 этаж
Спальни
3 спальни
Санузлы
2 санузла
Формат
АР + КР

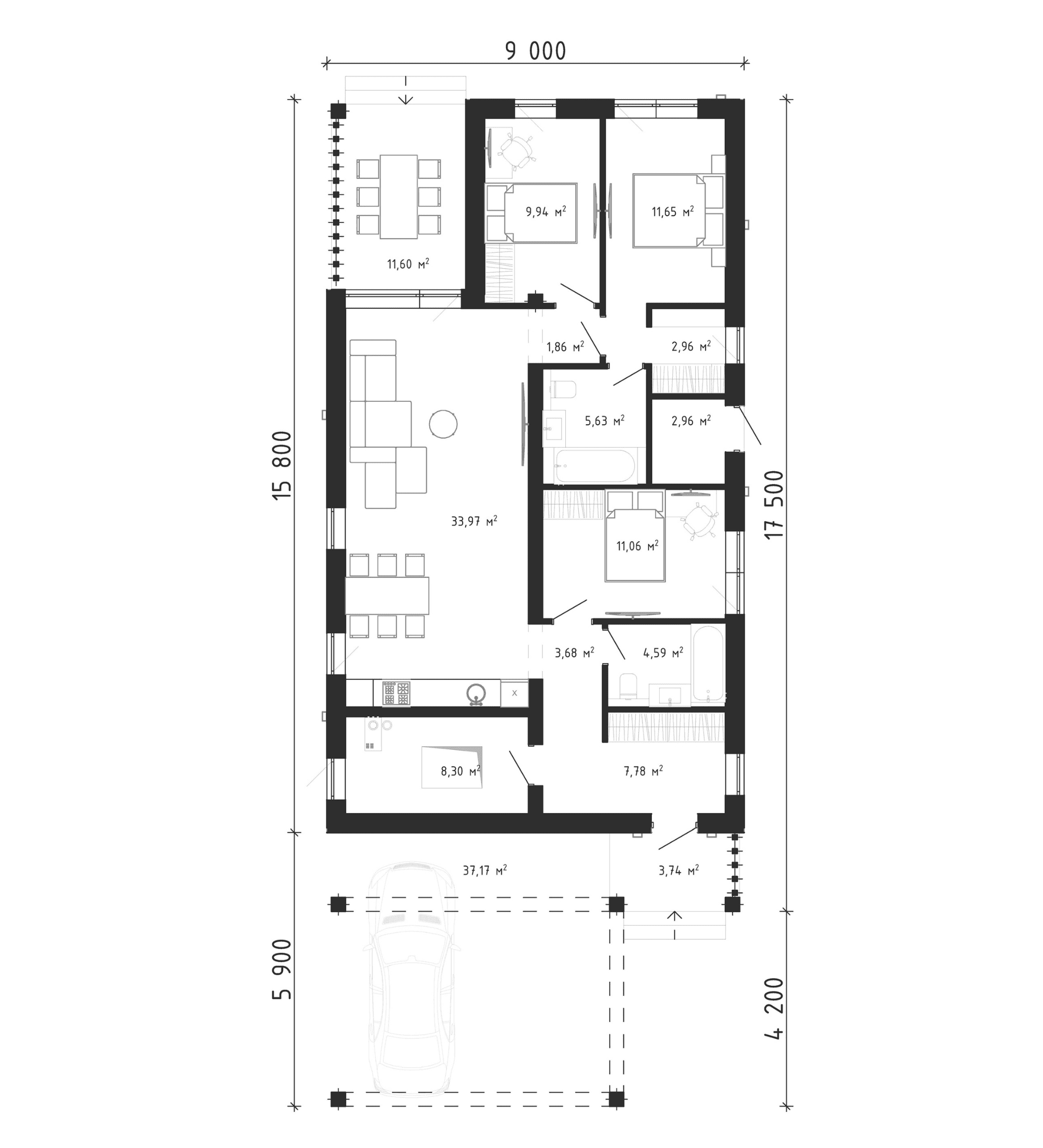
Планировка
Логика дома
Планировка Линда построена вокруг открытой общей зоны и компактного приватного блока. В доме предусмотрены тамбур, техпомещение, кухня-гостиная, три спальни, два санузла, гардеробная и отдельная кладовая садового инвентаря. Крытая парковка и терраса дополняют дом и делают его удобным не только внутри, но и в ежедневном использовании участка.

Архитектура проекта






Реализация





Что входит в проект
АР
КР
Важная информация
Типовой проект не предполагает переработку планировочных и конструктивных решений. Допускается адаптация посадки дома под участок. Если требуются изменения по планировке, архитектуре или конструктиву, лучше перейти к индивидуальному проектированию.
Передача проекта
Проект передается в печатном виде на листах А3 (АР + КР) в двух экземплярах или отправляется службой доставки.
Стоимость типового проекта
94 200 ₽
