VF25-5 · типовой проект
Виллард
Виллард — типовой двухэтажный дом VillaForma для семьи, которой нужен более просторный формат без компромиссов по удобству. Проект сочетает современную выразительную архитектуру, тёплую отделку, большие оконные проёмы и продуманное разделение общей и приватной частей дома.
Код
VF25-5
Внутренняя площадь
189,29 м²
Общая площадь
222,55 м²
Этажность
2 этажа
Спальни
4 спальни
Санузлы
3 санузла
Формат
АР + КР

Планировка
Логика дома
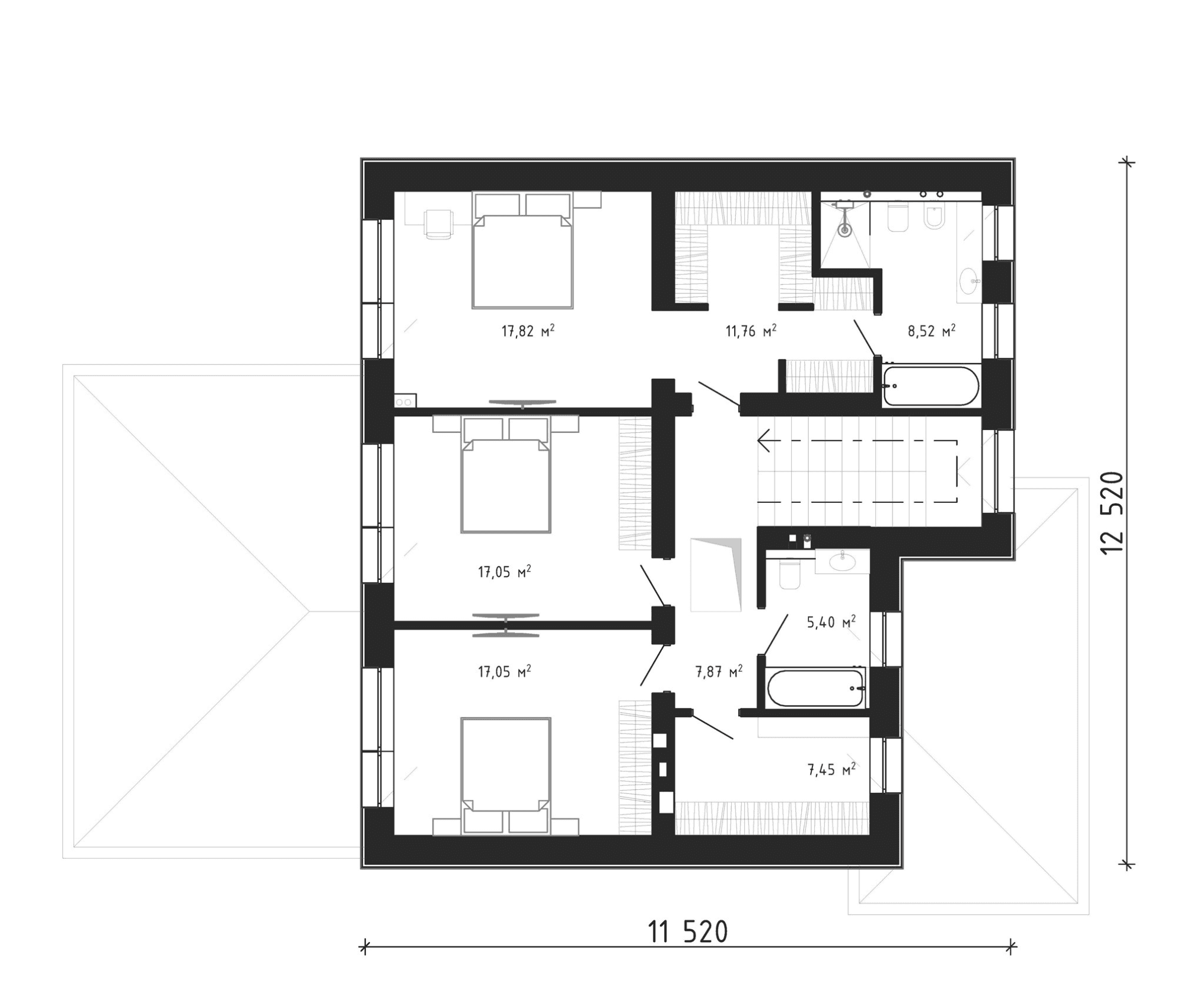
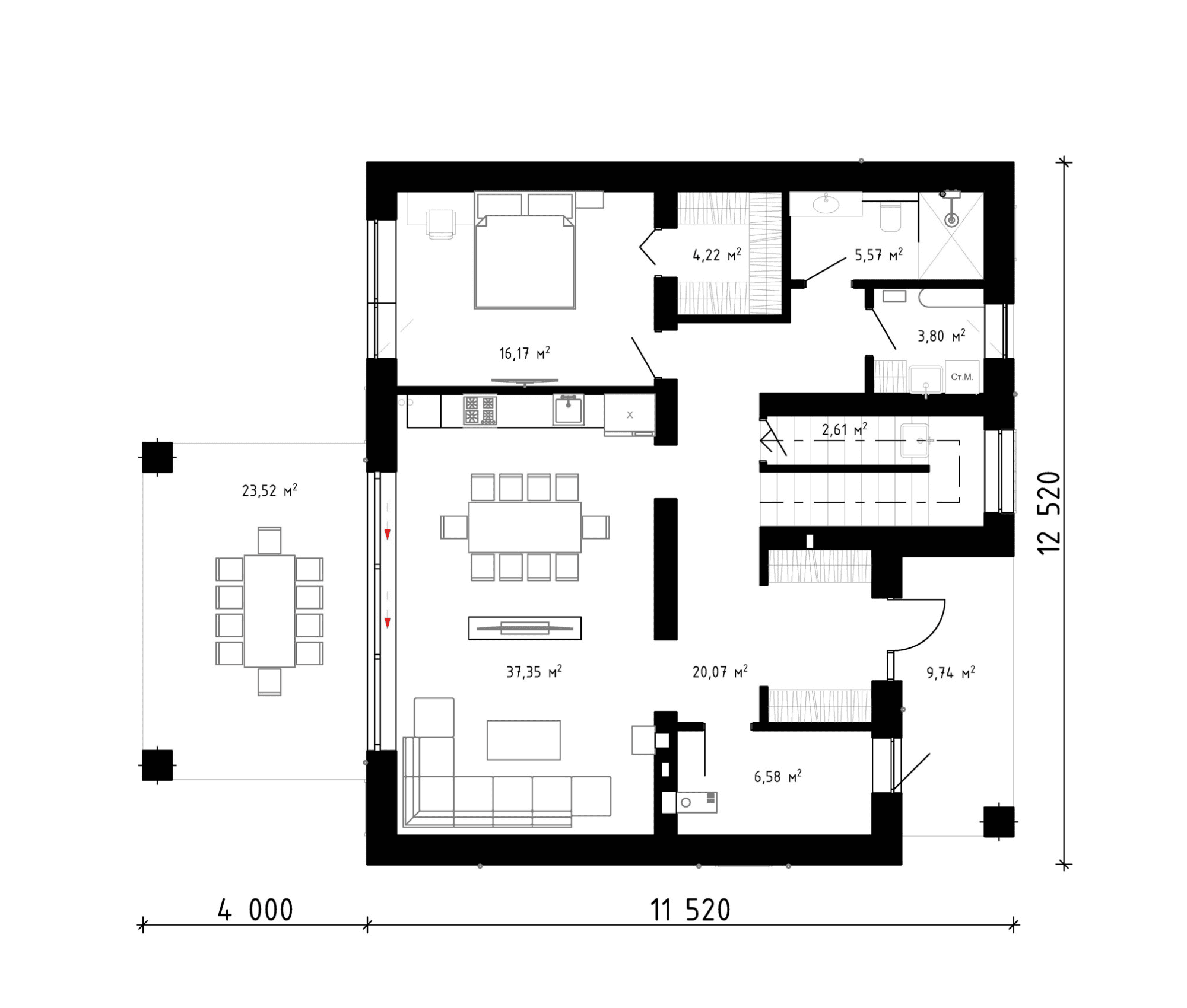
Планировка Вилларда построена по принципу чёткого разделения функций по этажам. На первом этаже расположены входная группа, холл, топочная, постирочная, санузел, гардеробная, спальня и просторная кухня-гостиная с выходом на террасу. На втором этаже собран приватный семейный блок: мастер-спальня, ещё две спальни, два санузла, гардеробная, кладовая и холл.


Архитектура проекта






Что входит в проект
АР
КР
Важная информация
Типовой проект не предполагает переработку планировочных и конструктивных решений. Допускается адаптация посадки дома под участок. Если требуются изменения по планировке, архитектуре или конструктиву, лучше перейти к индивидуальному проектированию.
Передача проекта
Проект передается в печатном виде на листах А3 (АР + КР) в двух экземплярах или отправляется службой доставки.
Стоимость типового проекта
133 500 ₽
